How To Measure for Springer Forks
In order to build a set of Springer Forks that will properly fit your particular frame configuration we need a few measurements. Please don't just guess at these dimensions. They are all critical to the proper design and fabrication of the forks and/or component parts that we will be custom making per your specifications. We want you to have a perfect fit when everything is installed on the bike.
To begin with your springer front end measurements, you will need to have the bike level, preferably on blocks under the front of the frame with the rear wheel still touching the ground. Then use shim blocks to set the height of the lower rails, at the front of the frame, to the 'ride height' you want to have when your weight is on the bike and it's actually going down the road. Most people like to have the front of the rails about one to one and a half-inch higher than the rear when the bike is under load, but some people like it higher so just mock the frame up and give us the dimension labeled 'FH' (frame-height) on the diagram. I've seen this distance as great as 9-inches on old school chops but regardless of the style of bike it is a critical measurement.
When you set the lower rail height (FH) it also changes your rake angle (RA) from whatever the 'stock' value was since the frame makers set rake when the frame was in the jig.
You can use one of the cheap plastics 'angle-finders' sold at most home-supply type stores like Home Depot to find this angle. For the vast majority of frames this angle will be somewhere between 33 and 53-degrees. This angle corresponds to the angle labeled 'RA' on the diagram. Remember this is the 'real' steering stem rake when the frame is mocked-up in its riding stance and not the catalog angle or the angle measured when the frame is sitting flat on the shop floor.
The biggest mistake many people make is to use the wrong rake angle when ordering forks from any builder or manufacturer and the one reason that many sets of forks end up being shorter than they were supposed to be. As a rough rule of thumb raising the front of the lower rails by one-inch changes the real rake angle by about 1.5-degrees and increases trail by about 1.5-inches.
The next measurement needed is labeled as 'NH' on the diagram. This is the neck height measured from the lowermost rear edge of the lower bearing cup to the ground. When the frame is mocked-up in riding stance.
Needless to say, that imaginary measurement line needs to be perpendicular to the ground and not skewed at some angle.
Next, we need to know the height of the front axle from the ground line. Tire/wheel combinations vary depending upon the actual tire and wheel you own so don't just assume that some catalog specification will match what you actually plan on running. This distance is labeled 'AH' on the diagram.
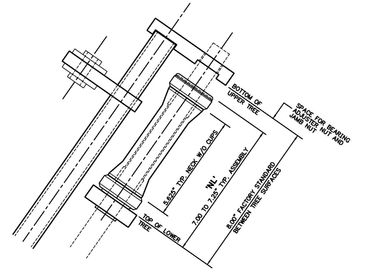
The next thing needed is what we call the 'neck-length' (NL). Basically, this is just the distance between the outside surfaces of the upper and lower dust shields. The diagram below is a sketch of a typical neck assembly. We use the NL measurement to calculate the number of threads you need on the steering stem.
This distance can vary considerably from one bike to the next so take some time to get this as close as you possibly can. Different bikes will come fitted with different styles of bearing preload nuts and locking washers. We will supply a new set with the forks, but the proper fitment of the trees may still need to be adjusted slightly using shim washers especially if you change bearings or add internal stops where there is a plate doweled into the lower tree. Quite often there is a small amount of space between the upper bearing preload nut and the actual bottom of the upper tree, and this is normal so that preload can be adjusted without removing the top tree.
Most Springer manufacturers set the distance between the top of the lower tree and the bottom surface of the upper tree at 8-inches.for Harleys and custom choppers. This distance is an old hold-over from the early days of Harley Springers that hasn't changed over the decades. It leaves a slight space between the upper bearing dust cover and the bottom of the upper tree to handle the height of the bearing adjusting nut and jam nut or an old-style cone-nut.
Also note whether you'll be needing an older Sportster stem (7/8") or a Big Twin stem (1").
Lastly, we need to know the diameter of the axle you're going to be using to match your wheel bearings. The most common sizes are 5/8 and 3/4".
Send us the measurements you've taken, and we'll get back to you with a confirmation as to the length of forks needed for your particular bike.
If it turns out that there might be some issues with 'trail' on your project we'll also give you some suggestions about alternative Springer design possibilities like raked trees or dropped rockers to improve the proposed handling characteristics.
(Note that using 'Dropped' rockers to bring trail back into a 'normal' range will change the length of the fork legs needed for a particular bike significantly so you can't install such rockers on an existing set of forks).


Copyright 2020, All Rights Reserved
We use cookies to analyze website traffic and optimize your website experience. By accepting our use of cookies, your data will be aggregated with all other user data.